Hallo zusammen,
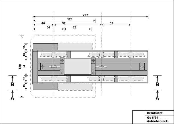
so, die Zeichnungen für den Antriebsrahmen habe ich nun fertig. Hätte ich besser schon früher getan, denn ich habe festgestellt, dass ich die Kurbeln noch mal anfertigen muß.
Wer einen Konstruktionsfehler findet, bitte melden. Ich faxe ihm sofort ein großes Bier !
Grundsätzlich habe ich darauf geachtet, dass alle Teile relativ simpel herzustellen sind – komplizierte Konstruktionen hauen m.E. eh´ nie hin. Hier noch ein paar Anmerkungen:
Verschiebbarkeit der Achsen:
Die zweite und dritte Achse sind um jeweils +/- 2mm seitenbeweglich, d.h. sie können einen maximalen Versatz von 4mm zueinander aufweisen, was für R1 notwendig wird

(fahre ich zwar nicht, aber man weis ja nie

). Genau diese Verschiebbarkeit hatte ich bei der Konstruktion der Kurbeln vergessen. Nun sind sie zu dick, und ich muß wohl neue, filigranere anfertigen.
Federung:
Angeregt durch Fidos Beitrag habe ich das Thema noch mal gründlich überdacht und bin zu einem unerwartetem Schluß gekommen:
Ich verzichte auf die Federung (und erwarte jetzt Euren Kritik-Hagel).
Erstens, der Kiss verzichtet bei seiner viergekuppelten G4/5 auch darauf (schwaches Argument

). Wichtiger ist mir aber, dass die Krokos absolut robust werden. Durch die Lagerung der drei Achsen in einem starren Rahmen kann ich zwei Achsen über Ritzel antreiben und kann eine durchgehende Kuppelstange mit fest verbundener Treibstange verwenden. Letzteres ist allein schon notwendig, weil die Vorgelegewelle eigentlich keine Welle ist, sondern jede Scheibe einzeln von einer Treibstange mitgenommen wird. Außerdem kriege ich so bestmöglich die Belastung an den Kurbeln klein. Bedenkt: das werden Außenrahmenloks. Die Kurbeln werden nur mit den Achsen, nicht mit den Rädern verbunden. Da ist mit zu hohen Kräften Vorsicht geboten
Einen Kompromiss habe ich beim Achsstand gemacht. Der Abstand zwischen erster und zweite Achse ist um 3mm vergrößert. Das hat aber den Vorteil, dass der LGBing-Motor reinpasst ohne dass ich die Schnecken verschieben muß.
So, nun erwarte ich Euren Sturm der Entrüstung wegen dieser Schummeleien ....
(.... übrigens ist´s sonst natürlich auf den Millimeter massstäblich)
Euer
Stoffel
